2 külön szobás a belváros peremén

2044 Nyomtatás Ajánlás Facebook

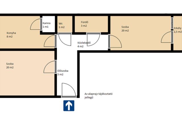
Szeged egyik kedvelt részén az Ősz u-ban található ez a 2 külön nagy szobás 66 m2-es II. emeleti társasházi tégla lakás. A lépcsőház rendezett, tiszta. Rendkívül világos, napos.
Az egyik szoba és a konyha az utcára néz, a másik szoba az udvarra. Egyedi radiátoros fűtéssel rendelkezik.
A parkolás az utcán ingyenes.
A lakáshoz tartozik egy utcai garázsvásárlási lehetőség is. A 13 m2-es garázs vételára 10 M Ft.

A környéken újabb építésű társasházak vannak. A közlekedés jó, pár percre troli, busz megálló. A belváros 5 perc gyalog.
Azonnal költözhető.

Deákné Adrienn
PRÉMIUM

Deákné Adrienn

13 éve a Városi Ingatlaniroda tagja
Ingatlanértékesítő
Szeged
+36 (30) 277 2060
Észrevétel a hirdetéssel kapcsolatban
Egy ingatlanos naplója