Állandó lakhatásra, de vendégháznak is ideális

1242 Nyomtatás Ajánlás Facebook

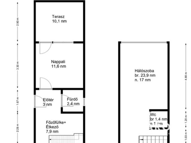
A szlovén határ mellett található, a fürdőjéről országosan ismert Lenti település csendes, külterületi részén, a Lenti-hegyen várja új tulajdonosát ez a jó elosztású, remek ingatlan. Az épület 25 nm alapterületű, de a tetőtér beépítésre került, így közel 50 nm hasznos alapterülettel rendelkezik. Az ingatlan alatt szintén egy 25 nm nagyságú száraz pince húzódik. A terület összesen 2290 nm nagyságú, mely erdőben ér véget. A kilátás itt minden évszakban kiváló.

A felújítási munkálatok hatására az ingatlan állandó lakhatásra alkalmas, de kiadásra, vendégház kialakítására is tökéletes választás. A felújítási munkálatok során az ingatlan új tetőt, új nyilászászárókat kapott. Megújult a teljes villamoshálózat, valamint kialakításra került a tetőtér, valamint egy fürdőszoba is. A homlokzat 5 cm vastag szigetelést kapott. A fűtésről egy cirkó kazán gondoskodik radiátorok segítségével. Az épület jelentős munkálatokat nem igényel, jelen állapotában is azonnal lakható. A lakótér helyiségei: nappali terasz kapcsolattal, előtér, fürdőszoba, főzőfülke, a tetőtérben pedig egy hálószoba, és egy külön wc.

Pároknak, befeketetésnek is ideális. Megtekintéshez minden esetben telefonos egyeztetés szükséges! Az ingatlan irányára 68.000 Euró!

Stolcz Gábor prémium ingatlanértékesítő (+36 30 5518808)

Stolcz Gábor
PRÉMIUM

Stolcz Gábor

9 éve a Városi Ingatlaniroda tagja
Ingatlanértékesítő
Letenye
+36 (30) 551 8808
Észrevétel a hirdetéssel kapcsolatban
Egy ingatlanos naplója