Exkluzív, kertkapcsolatos lakás Újszegeden

552 Nyomtatás Ajánlás Facebook

Eladó Prémium Téglalakás Újszegeden közvetlen kertkapcsolattal, nagy terasszal és jacuzzival.

Cím: Szeged, Újszeged városrész

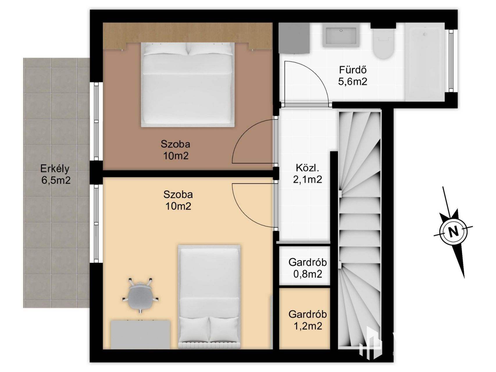
Fedezze fel ezt a páratlan lehetőséget egy fiatal, újszerű állapotú ingatlan formájában, amely minden igényt kielégít! Az Újszeged csendes, zöldövezeti részén található 73 m²-es belső szintes tégla lakás várja új tulajdonosát.

Főbb Jellemzők:
- Helyiségek: 2 kényelmes hálószoba, 1 tágas nappali amerikai konyhával, külön fürdőszoba és WC.
- Kialakítás: Modern prémium anyagokkal készült, rendelkezik dekorvilágítással és fali dekorburkolatokkal, berendezve várja új lakóit.
- Kertkapcsolat és kikapcsolódás: saját terasz és erkély, parkosított udvar automata öntözőrendszerrel, kertkapcsolat, jakuzzi.
- Tárolás: Beépített szekrény és gardrób, saját és közös tároló biztosítja a helyet minden holmi számára.
- Kényelmi Megoldások: Padlófűtés, klíma, redőnyözött ablakok szúnyoghálóval.
- Parkolás: Elektromos garázskapuval ellátott garázs és udvari gépjárműbeálló lehetőség.
- Biztonság és Hőszigetelés: Külső hőszigetelés garantálja az alacsony fenntartási költségeket.

- Elhelyezkedés: Az ingatlan kiváló elhelyezkedésének köszönhetően a belváros könnyen megközelíthető, jó közlekedési lehetőségekkel rendelkezik, mégis csendes utcában található.

Ne hagyja ki ezt a lehetőséget, élvezze a luxus érzetét minden nap! További információért és megtekintése ügyében keressen bizalommal!

Ár: 99.900.000 + 18. 000.000 (Garázs- kötelezendően megvásárolandó)

Ne várjon tovább, tegye meg az első lépést álmai otthona felé!

Exclusive Premium Duplex Apartment for Sale in Újszeged

Location: Szeged – Újszeged, one of the city’s most sought-after green residential areas

Step into refined living with this exceptional, like-new 73 m² duplex brick apartment, where contemporary design meets everyday comfort. Nestled in a quiet, leafy part of Újszeged, this home offers the perfect balance of tranquility and urban accessibility.

Property Highlights

Elegant Living Spaces:
Two well-proportioned bedrooms and a bright, spacious living room with an open-plan kitchen create an inviting and functional layout. A separate bathroom and WC ensure added convenience.
Sophisticated Interior Design:
Crafted with premium materials throughout, the apartment features bespoke decorative lighting and stylish wall finishes. It is offered fully furnished, ready for immediate move-in.
Private Outdoor Experience:
Enjoy your own terrace and balcony, complemented by a beautifully landscaped garden with an automated irrigation system. The property also boasts direct garden access and a private jacuzzi, perfect for relaxation.
Ample Storage Solutions:
Built-in wardrobes, a walk-in closet, as well as private and shared storage areas provide generous space for all your needs.
Modern Comfort & Technology:
Underfloor heating, air conditioning, and shuttered windows with integrated mosquito screens ensure year-round comfort.
Secure Parking:
A garage with an electric door, along with additional courtyard parking, offers convenience and security.
Energy Efficiency:
High-quality external insulation contributes to low utility costs and sustainable living.

Prime Location
Set in a quiet street, yet just minutes from Szeged’s vibrant city center, the property benefits from excellent transport links while maintaining a peaceful residential atmosphere.

Indulge in a lifestyle defined by elegance, comfort, and exclusivity.
For further information or to arrange a private viewing, please do not hesitate to contact me.

Price: 99.900.000 + 18.000.000 (garage purchase mandatory)

Your dream home awaits. Experience it in person!

Róvó Vivien

Róvó Vivien

Ingatlanértékesítő
Szeged
+36 (70) 544 8724
Észrevétel a hirdetéssel kapcsolatban
Egy ingatlanos naplója