Figyelem!!! Déli Ipari park, telephely, csarnokok, irodák!

3137 Nyomtatás Ajánlás Facebook

**Kiadó Telephely Déli Ipari Park - Ingatlan Kiváló Adottságokkal!**

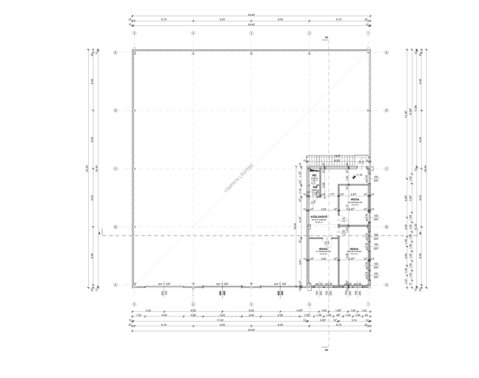
Mikepércs Debrecen felőli oldalán, kiadó egy új telephely, amely kiváló lehetőségeket kínál vállalkozása számára. Az ingatlan 1255 m² beépített épületegyüttessel bír, amely 2 db 600 nm-es csarnokból, és egy két szintes irodaházból tevődik össze, és egy hatalmas, 8000 m²-es parkosított telephellyel rendelkezik, amely biztosítja a zavartalan működést és a kényelmet.

**Főbb jellemzők:**
- **Modern felszereltség:** Az épület teljesen berendezett, amerikai konyhával, klímával, és modern bútorokkal felszerelt.
- **Közművek és technológia:** Háromfázisú áram, napkollektor, napelem rendszer, valamint riasztó és kamera rendszer gondoskodik a biztonságról. Optikai internet kábel biztosítja a gyors és megbízható internetkapcsolatot.
- **Energiahatékonyság:** Alacsony fenntartási költségeknek köszönhetően költséghatékony megoldás minden vállalkozás számára. A telephely fúrt kúttal és automata öntözőrendszerrel van ellátva.
- **Kényelmes közlekedés:** Jó közlekedési lehetőségek és udvari gépjárműbeálló, valamint elektromos kapuk és csarnokkapuk is rendelkezésre állnak.
- **Luxus kényelem:** étkező-konyha, irodák, 2 db mosdó, külön wc, és levegő szellőztető, és inverteres hűtő fűtő klíma rendszer biztosítja a maximális kényelmet. Beépített szekrények segítik a praktikus tárolást.

Ez az ingatlan tökéletes választás azoknak, akik csendes környezetben, de mégis nagyon frekventált helyen keresnek egy modern és jól felszerelt telephelyet. Ne hagyja ki ezt a páratlan lehetőséget!

További információkért és megtekintésért keressen bizalommal!
TRIPSÓ TIBOR
+36 30 942 5373
Prémium ingatlanértékesítő
Városi Ingatlaniroda
Debrecen

További információkért és megtekintésért keressen minket bizalommal!

Tripsó Tibor
PRÉMIUM

Tripsó Tibor

10 éve a Városi Ingatlaniroda tagja
Ingatlanértékesítő
Debrecen
+36 (30) 942 5373
Észrevétel a hirdetéssel kapcsolatban
Egy ingatlanos naplója