Gyulán belvárosi telek, két családi házzal eladó

12348 Nyomtatás Ajánlás Facebook

A Városi Ingatlaniroda eladásra kínál Békés megyében, Gyulán az Újvárosi részen 512 m2-es telken, két családi házat.
Egy egyszintes ( A épület) 95 m2 -est és egy kétszintes 82 ( B éület ) m2-est házat.

Az ingatlan 1972 – 2022 között apartmanként folyamatosan üzemelt ( férőhelyek száma 21 fő ).

Az „A” épület 1970-ben épült, alapja vasalt beton, tégla a lábazata, tégla a falazata. Nyílászárói hagyomásnyosak, fából készültek, melyek redőnnyel vannak ellátva. 1996-ban tulajdonosai kicserélték az elekteromos hálózatot, a vízvezetékeket és néhány hideg burkolatot ( konyha, fürdőszoba, folyosó).
A házban gázkazános központi fűtés van, melelgvizéről villanybojler gondoskodik.

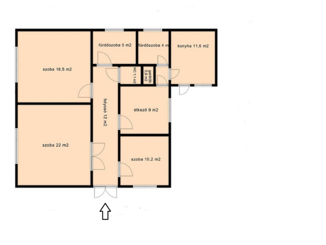
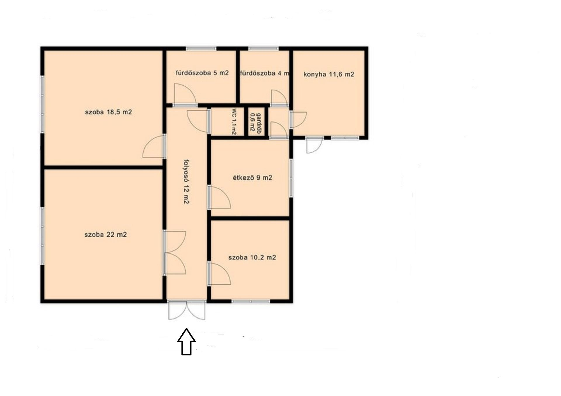
A ház részei:
- előszoba
- 3 db szoba
- étkező
- konyha
- 2 db fürdőszoba
- WC

A „B ”kétszintes épület épület 1985-ben épült, alapja vasalt beton, tégla a lábazata, tégla a falazata.
Műanyag nyílászárókkal van ellátva, melegéről gázkonvektorok, melegvizéről villanybojler gondoskodik.

A kétszintes ház részei:
földszinti részén:
- előszoba
- nappali/étkező
- szoba
- konyha
- fürdőszoba
- WC

emeleti részén:
- 3 db szoba
- közlekedő
- 2 dbfürdőszoba
- 2 db WC

A ház elhelyezkedése és nagysága alkalmas lehet két generáció összeköltözésére vagy apartmanház üzemeltetésének a folytatására is.
Az udvarban az épületek között kb 6 autó számára van parkolási lehetőség.
Gyula nevezetességei ( Vár, Várfürdő, Almássy kastély ), élelmiszerbolt, belváros pár perc sétával elérhető.

Molnár János
PRÉMIUM

Molnár János

2 éve a Városi Ingatlaniroda tagja
Ingatlanértékesítő
Békéscsaba
+36 (70) 384 6653
Észrevétel a hirdetéssel kapcsolatban
Egy ingatlanos naplója