Ipari komplexum Kaposváron

32802 Nyomtatás Ajánlás Facebook

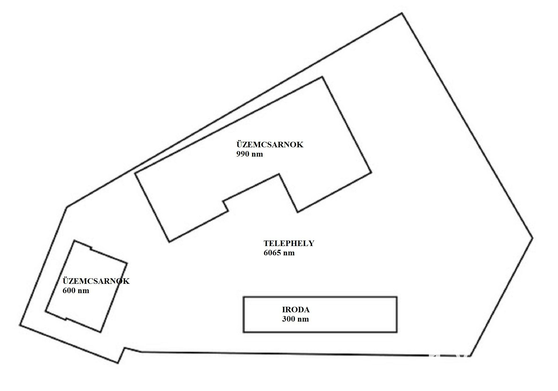
Kaposvár keleti részén vált eladóvá ez a gyorsforgalmi útról teherautóval is gyorsan és könnyen megközelíthető ipari létesítmény. A létesítményen belül 2 hatalmas üzemcsarnok, illetve egy irodaház került kialakításra. A két nagy csarnok nagy légüres terekkel rendelkezik, melynek köszönhetően bármilyen tevékenységre alkalmas lehet. Az irodaház kétszintes elrendezéssel került kialakításra, két külön bejárattal. Alsó szinten irodahelyiségek, vizesblokkok, felső szinten egy nagy légtérrel rendelkező helyiség és hozzá a konyha és a vizes blokk.
Az ipari létesítményhez elektromos kapu, illetve porta épület tartozik, így a biztonságos beléptetés megoldott. Az egész területen kamerarendszer került kiépítésre. A két üzemcsarnok jelenleg bér van adva, az egyikben autószerelő műhelyekként van hasznosítva, a másik raktározási célra használja a bérlő. A csarnokok illetve egy iroda helyiség is bérlés alatt vannak, akik tulajdonos váltás esetén is tovább bérelnének. Az egész komplexum területén ipari áram található, a vízellátás jelenleg fúrt kútról megoldott. Víz, csatorna, illetve gáz rákötés 100-m belül találhatóak. A létesítmény rendelkezik tűzivízcsap hozzáféréssel. A nagyobb csarnok vázrendszere híddaru kiépítéséhez elő van készítve.
A létesítményegyüttes bármilyen raktározási, logisztikai, vagy ipari célra tökéletes alkalmas. A számtalan kiaknázható lehetőség miatt érdemes személyesen is megnézni!
Iroda: Nagykanizsa, Platán sor 7.

Hohl József
PRÉMIUM

Hohl József

10 éve a Városi Ingatlaniroda tagja
Régióigazgató
Nagykanizsa
+36 (30) 608 6857
Észrevétel a hirdetéssel kapcsolatban
Egy ingatlanos naplója