Kiváló befektetési lehetőség az Aranyparton

3995 Nyomtatás Ajánlás Facebook

Kivételes befektetési lehetőség Siófok szívében – mindössze 100 méterre a Balatontól!

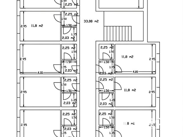
Eladásra kínálok egy páratlan adottságokkal rendelkező ingatlant Siófok egyik legkedveltebb és legkeresettebb városrészén, az Aranyparton. Ez a háromszintes, különleges méretű panzió nettó 660 m2 lakóterülettel rendelkezik, amely egy összesen 1330 m2-es telken helyezkedik el – mindössze egy perc sétára a Balatontól!

Főbb jellemzők:
- Kiváló lokáció: Az Aranypart közvetlen közelében, nyugodt, mégis frekventált környezetben
- 3 szintes épület – rengeteg kihasználható térrel
- Felújítandó állapot – teljes körű modernizálást igényel, így szabad kezet ad az új tulajdonosnak a kialakításban
- Telek besorolás: Üh-1-sz

Jelenlegi elosztás:
- 25 szoba
- 19 fürdőszoba
- 72 m2-es étkező
- kiszolgáló helységek

Ez az ingatlan kiváló alapot nyújt különféle befektetési célok megvalósításához:
- Társasház-projekt: Ideális akár 15 lakásos társasház kialakítására – a lokáció kiváló értékesíthetőséget garantál
- Szálláshely-fejlesztés: Hotelként, apartmanházzá vagy modern panzióként is újrahasznosítható
- Szolgáltatások bővítése: A tágas udvar lehetőséget kínál parkolóhelyek kialakítására, illetve medence vagy wellnessrészleg építésére

Elhelyezkedés és megközelítés:
A belváros, éttermek, kávézók, boltok, szórakozóhelyek és a vasútállomás pár perces sétatávolságra vannak.
Kiváló közlekedési kapcsolatok

Miért éri meg?
Ez az ingatlan ritka lehetőség azok számára, akik egy frekventált, mégis nyugodt környezetben szeretnének hosszú távon jövedelmező ingatlanba fektetni. A Balaton közelsége, a telek és az épület mérete, valamint a sokféle átalakítási lehetőség egyedülálló kombinációt kínál.

Ne hagyja ki ezt a páratlan lehetőséget, hogy Siófok egyik legértékesebb részén valósítsa meg ingatlanberuházását!
További információért és személyes megtekintésért várom megkeresését – a hét minden napján, rugalmas időpont-egyeztetéssel!

Vastag Ákos
PRÉMIUM

Vastag Ákos

2 éve a Városi Ingatlaniroda tagja
Ingatlanértékesítő
Siófok
+36 (30) 311 2069
Észrevétel a hirdetéssel kapcsolatban
Egy ingatlanos naplója