Komárom központi részén Hotel eladó

14461 Nyomtatás Ajánlás Facebook

Megvételre kínálok, egy 3 csillagos Hotelt Komáromban a város központ és a gyógyfürdő szomszédságában.

A szálloda a Komáromi Gyógyfürdő szomszédságában található, mindössze 7 km-re az M1-es autópályától 30 percnyi távolságra Győrtől. Ez a jól karbantartott szálloda ideális választás azoknak, akik szeretnének befektetni a vendéglátóiparban vagy akár egy minőségi munkás szállás kialakításában gondolkodnak, melyre manapság egyre nagyobb az igény. Az ingatlan elhelyezkedésének köszönhetően egy igazán remek befektetés.

Főbb jellemzők:
Építés éve: 1986
Telekméret 1434 m2
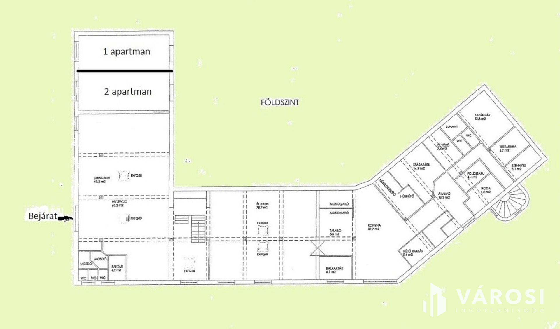
Alapterület 949 m2 / földszint, emelet és a tetőtér /
Jelenlegi tulajdonosok: 2010 óta üzemeltetik
2015-ben teljes körű felújítás történt, beleértve a külső nyílászárók cseréjét, víz- és csatornarendszer teljes korszerűsítését, elektromos hálózat cseréjét, fűtésrendszer modernizálását.
Minden szoba klímával felszerelt és új bútorokkal berendezett.
10 cm dryvit hőszigetelő rendszer, és napkollektorral rendelkezik.
Összesen 24 db 2 ágyas szoba saját fürdőszobával.
Tetőtérben 9 db szoba, az első emeleten pedig további 15 szoba található.
Földszinten két apartman lett kialakítva.
Extrák: kiépített kamerarendszer, 2 db vízóra, 2 db gázóra, klímás mind a 24 szoba
80 fős étterem felszerelt konyhával ,előkészítő és raktárhelyiségekkel.
Bővítésre is van lehetőség. Akár 8-10 szobával bővíthető a jelenlegi formájában, de akár igény szerint hozzá is lehet még építeni a szállodához .
Kiváló elhelyezkedés: A hotel közel található a gyógyfürdőhöz, így vonzó lehet a pihenni vágyó vendégek számára. A parkolás az utcán ingyenes, szálloda előtt 8 db parkoló lett kialakítva. Komáromi ipari park is sok, nagy létszámú nemzetközi céget jegyez, így munkás szállásnak is kiváló lehetőség.
Ár: 800 millió + áfa
Várom megtisztelő hívásukat, keressenek bizalommal!

Slájer Tamás
PRÉMIUM

Slájer Tamás

9 éve a Városi Ingatlaniroda tagja
Ingatlanértékesítő
Tinnye
+36 (20) 363 5186
Észrevétel a hirdetéssel kapcsolatban
Egy ingatlanos naplója