Nagy telek, nagy ház a belvárostól 5 percre

4447 Nyomtatás Ajánlás Facebook

Befektetők figyelem – nagy telek, két lakás lehetősége Tamásiban!

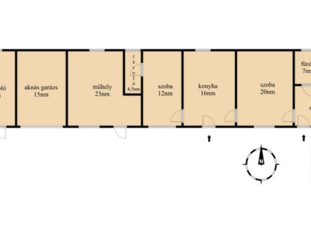
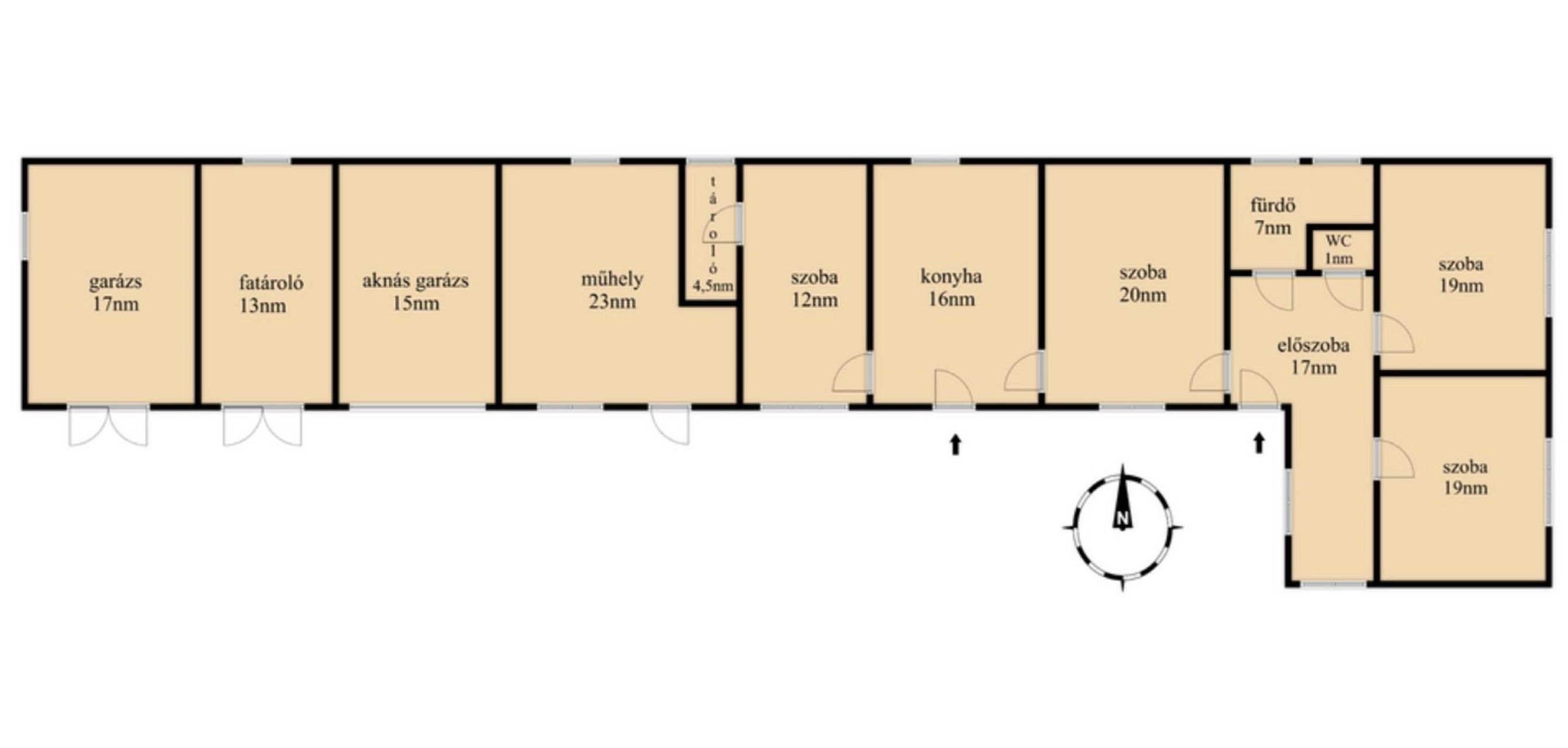
Eladó Tamásiban egy 115 m²-es családi ház 2133 m²-es telken, jelentős értéknövelési potenciállal.

Az ingatlan felújítandó, de kiváló adottságokkal rendelkezik:

4 szoba → akár két külön lakás kialakítható
különálló, ~90 m²-es épület (műhely + 2 garázs)
szerelőaknás garázs
25 m²-es pince
nagy telek → további hasznosítási lehetőségek
Ideális:
továbbértékesítésre (flippelés)
kiadásra (2 lakás kialakításával)
vállalkozás + lakhatás kombinációjára
Csendes elhelyezkedés, mégis minden fontos szolgáltatás gyorsan elérhető.
Komoly potenciál, jó alap – ritka lehetőség ebben a kategóriában.
Érdeklődni privátban vagy telefonon.

Investors attention – large plot, two apartments option in Tamási!

A 115 m² family house for sale in Tamási on a 2133 m² plot, with significant value-added potential.

The property needs renovation, but has excellent features:

4 rooms → up to two separate apartments can be created
separate, ~90 m² building (workshop + 2 garages)
garage with a service shaft
25 m² basement
large plot → additional utilization options
Ideal for:
resale (flipping)
renting out (with the creation of 2 apartments)
business + living
Quiet location, yet all important services are quickly accessible.
Serious potential, good base – a rare opportunity in this category.
Inquire privately or by phone.

Dér Attila

Dér Attila

Ingatlanértékesítő
Siófok
+36 (30) 339 6019
Észrevétel a hirdetéssel kapcsolatban
Egy ingatlanos naplója