Örök panorámás üdülő övezeti telek eladó

4360 Nyomtatás Ajánlás Facebook

Szeretne a város zajától távol, mégis könnyen megközelíthető helyen élni?
Akkor ez az Ön számára ideális lehetőség! Eladásra kínálunk egy 910 m²-es, kiváló állapotban lévő zárt kertet Erdő melletti környezetben, Domonyvölgy csendes utcájában, a Napfény utcában. Fölötte már csak egy zsákutca van.

Az ingatlan egy gyönyörű zöld övezetben helyezkedik el, ahol nyugalom és természetközeli élet várja. A zártkert művelési ág alóli kivonása megtörtént.
A telken belül víz és áram is megtalálható.

Az ingatlan üdülőterület, beépítési feltétele a részleges közművesség, a víz és a villany telken belüli bekötése megtörtént.
Beépítési mód: szabadonálló
Kialakítható legkisebb telekméret: 550 m2
Legnagyobb beépítettség: 15 %
Legnagyobb építménymagasság: 4,5 m
Zöldfelület legkisebb mértéke : 60 %
legfeljebb két üdülőegységes épületek helyezhetők el.
előkert minimum: 5 m
oldalkert: minimum 3 m
hátsókert minimum 6 m
gépkocsi beálló 1 / db lakás
A telek panorámás, lejtése -25%.
A telek utcafronti szélessége 25 m, körbe kerített.

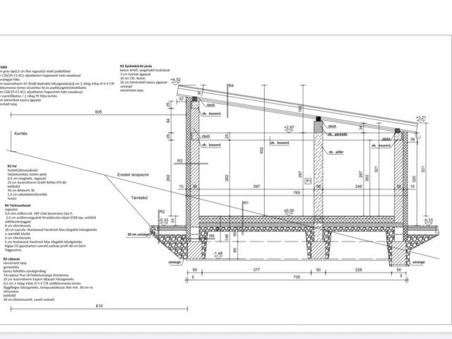
A telken a lavírsík elkészült és az építési terület rendezése.
Ez szolgál kiindulópontként a tereprendezésnél.
Az építési terület fölötti támfal megépült.

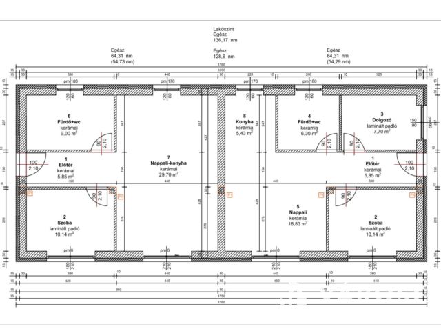
A telek beépítésére van egy tervezeti elképzelés 2 db üdülőegységre bruttó 136 m2.
Bruttó 64,30 m2 lakásonként, nettó 55 m2 vagy 110 m2 nettó 1 lakóegység.
megközelítése egész évben jól járható, az utca sarkáig aszfaltos ,az utcán szórt aszfaltos.
Egyre többen választják állandó lakhatásra is.

A környék kitűnő közlekedési lehetőségekkel rendelkezik, így pár perces autó úttal egyszerűen elérhetőek a szükséges szolgáltatások és bevásárlási lehetőségek.
A környéken sok szabadidős tevékenységre van lehetőség, túrázás, kirándulás, séta, horgászás, fürdőtó, lovaglás, étterem büfé az útvonalon megtalálható.

Ez az ingatlan tökéletes választás lehet mindazok számára, akik szeretnének elvonulni a hétköznapok forgatagától, miközben a modern életvitel minden kényelmét élvezhetik. Ne hagyja ki ezt a remek lehetőséget!

Ha felkeltettük érdeklődését, kérjük, lépjen velünk kapcsolatba további információkért és időpont egyeztetésért!

Meszesánné Márki Ildikó
PRÉMIUM

Meszesánné Márki Ildikó

12 éve a Városi Ingatlaniroda tagja
Ingatlanértékesítő
Gyál
+36 (20) 388 3540
Észrevétel a hirdetéssel kapcsolatban
Egy ingatlanos naplója