Új építésű belvárosi lakás kiváló lokációban!

609 Nyomtatás Ajánlás Facebook

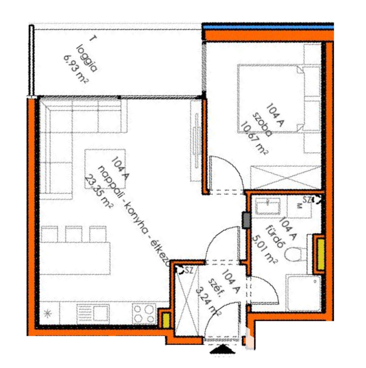
Szeged belváros, új építésű 4 szintes, liftes társas házban eladó 1. emeleti 45,735 négyzetméteres lakás 6,93 négyzetméteres terasszal, kulcsrakész állapotban. Az ingatlanhoz vásárolható önálló garázs vagy gépkocsibeálló a mélygarázsban kizárólagos használattal.
Az épülő társas házban további lakások megvásárolhatók, 32 - 80 négyzetméteres alapterülettel.

Az ingatlan közvetlen belvárosi kapcsolatokkal és teljes infrastruktúrával rendelkezik, ami azt jelenti, hogy a mindennapokhoz szükséges szolgáltatások, intézmények és közlekedési lehetőségek rövid sétatávolságon belül elérhetők. Ez a városi pozíció kényelmes életvitelt biztosít és hosszú távon is stabil értéktartást jelent a lakóknak.

Kulcsrakész állapot: 2027. November 30.

Most AJÁNDÉK, magas minőségű olasz konyhabútorral és ajándék beépített gardróbszekrénnyel.
- Kiváló elhelyezkedés
- Megújuló geotermikus energiára épülő padlófűtés mennyezet hűtés.
- Világos lakások átgondolt elrendezéssel.
- Magas műszaki tartalom és prémium szerkezet.
. Zárt, rendezett udvar és kényelmi infrastruktúra.
- Kulcsrakész átadás igényes belső anyagválasztással.
- A lakásokban padlófűtés és mennyezethűtés működik, amely még komfortosabb mindennapokat biztosít. A megújuló, környezetkímélő működésnek köszönhetően a rezsiköltség kifejezetten alacsony, ami hosszú távon is kedvező fenntartást és stabil értékállóságot eredményez.

Ha a vásárláshoz hitelre van szüksége, bank független hitel tanácsadónk az összes hazai bank ajánlatát versenyezteti az Ön igényeire szabva, díjmentesen.

Amennyiben felkeltette érdeklődését az ingatlan, hívjon bizalommal a 06302490482 tel. számon, akár hétvégén is.
dr. Vass Zoltán

Dr. Vass Zoltán
PRÉMIUM

Dr. Vass Zoltán

10 éve a Városi Ingatlaniroda tagja
Ingatlanértékesítő
Szeged
+36 (30) 249 0482
Észrevétel a hirdetéssel kapcsolatban
Egy ingatlanos naplója