Új építésű, energiatakarékos otthon

4720 Nyomtatás Ajánlás Facebook

Eladó Hódmezővásárhelyen, Új-kishomokon a Mező utcában, új építésű 3 lakásos sorházban, 79,42 m2 hasznos alapterületű tégla ház. Az amerikai konyhás, nappali + 2 hálószobás ház remek tájolású, kényelmes életteret biztosít 3-4 fős család számára. Az ingatlanhoz ~ 420 m2 önálló kertrész tartozik, valamint társasház részére tervezett közös (6,00m x 3,00m) medence és napozótér.
A mai kor építési-, szerkezeti- és energetikai követelményeinek tökéletesen megfelelő épület tégla falait 15 cm hőszigeteléssel látják el, a vasbeton födém 30 cm hőszigeteléssel készül, a tetőre igény szerint napelemek kerülhetnek. Az energiatakarékos otthon fűtését, hűtését és meleg-víz ellátását központi levegő-víz rendszerű hőszivattyú biztosítja.
A kivitelezés tervezett befejezése 2026 október, a feltüntetett ár a szerkezetkész állapotra vonatkozik.

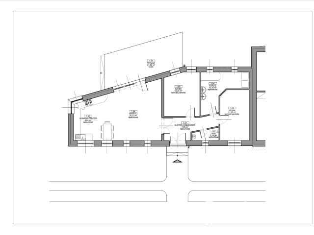
Az ingatlan paraméterei:
- Telek: ~420m2
- Lakótér: 79,42 m2
- Terasz: 21,82 m2
- Konyha-étkező: 8,64 m2
- Nappali: 26,47 m2
- Szobák: 12.25 m2, 11.63 m2,
- Fürdő-Mosókonyha: 10,30 m2
- ~100 m2 privát, csak a tulajdonosok számára elérhető, medence és napozó-játszó tér

A szegedi bejárás autóval 15 percet vesz igénybe, Vásárhely belváros autóval 10 perc.
Az ingatlannal kapcsolatos kérdéseivel várom hívását, a hét bármely napján.

Ügyfeleink számára irodánk teljes jogi hátteret, adás-vétellel kapcsolatos térítésmentes jogi tanácsadást biztosít.
Bank semleges hitelügyintézéssel, díjmentes hitelszűréssel és tanácsadással is hozzájárulunk, hogy megtalálja az ön számára legkedvezőbb megoldást

Sárai-Kovács Ágnes
PRÉMIUM

Sárai-Kovács Ágnes

5 éve a Városi Ingatlaniroda tagja
Ingatlanértékesítő
Hódmezővásárhely
+36 (30) 742 5020
Észrevétel a hirdetéssel kapcsolatban
Egy ingatlanos naplója